Nederlands
Rented:Velázquezstraat 26, 1328 WB Almere - Photo
Rented
+32

Velázquezstraat 26 1328 WB Almere

  • Apartment
  • 4 rooms
  • 3 bedrooms
  • 1 Bathrooms
  • Construction year 2005
  • 100 m² liveable area
  • Upholstered
  • A+ Energy certificate A+

Description

*BEZICHTIGINGSAANVRAAG VIA MAIL / APPLY THROUGH EMAIL - info@amstellandmakelaars.nl
* APPLY THROUGH EMAIL - info@amstellandmakelaars.nl

For rent in Almere (Tussen de Vaarten south):

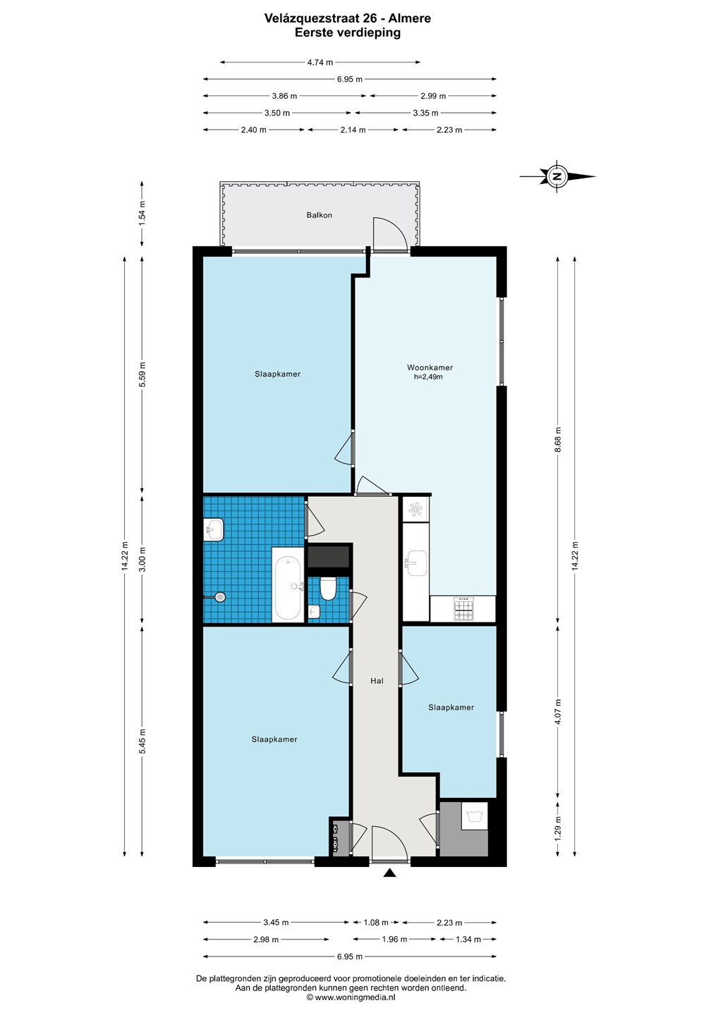
Looking for a spacious and modern apartment with unobstructed views and two outdoor spaces? This beautiful 4-room corner apartment of approximately 100 m², located on the first floor of a new-build complex with an elevator and storage, offers everything you need for comfortable living.

The apartment is situated on the first floor and boasts stunning views. The front balcony faces northwest, while the rear outdoor space (adjacent to the gallery) faces southeast, allowing you to enjoy the sun throughout the day.

LOCATION:
The apartment is located in the popular, family-friendly neighborhood Tussen de Vaarten South, centrally positioned between Almere City Center and Almere-Buiten. Within minutes, you can reach supermarkets, schools, childcare facilities, a health center, sports facilities, and public transport (Parkwijk and Almere-Buiten train stations). By car, the Hogering provides quick access to the A6 and A27 – perfect for commuters traveling to Amsterdam, Utrecht, or Lelystad.

GLOBAL LAYOUT:
The apartment complex has a communal entrance. With the elevator or the staircase you reach the apartment. On the second floor is a roof garden.

The living room is located at the front of the apartment and gives a nice view over the pond and the green. Also, the balcony located across the width of the apartment (approx. 10 m2) accessible from the living room. The modern open kitchen is carried out in a practical arrangement and equipped with various appliances including a dishwasher, fridge-freezer, induction hob and extractor.

Central to the apartment is the luxurious bathroom, equipped with a nice shower, bathtub and washbasin. Separate toilet with hand basin. Furthermore, the apartment has three spacious bedrooms, a laundry room / utility room. And an outdoor area adjacent to the roof garden!

In short, a tight and modern apartment with all amenities!

PARKING:
Around the house there is more than enough parking (2x electric parking spaces) where you can park freely.

PARTICULARS:
- Surface area: approximately 100 m2;
- three bedrooms, open kitchen and 2 balconies;
- Service costs: €50 per month;
- Suitable for house sharing;
- Elevator in the complex;
- Beautiful balcony at the front with unobstructed views;
- largely recently renovated;
- Modern kitchen and bathroom;
- spacious separate storage room in the basement;
- All imaginable amenities just steps away;
- rental period minimum 12 months;
- The house is unfurnished only;
- reservation approval landlord.

For more information or to make an appointment, please contact our office. Our staff will be happy to assist you.

This house is offered in accordance with art. 7:17 paragraph 6 Civil Code. The specified features are intended only as an indication.

Kaart

Features

Offer

Reference number
02878
Asking price
€1,950 per month (incl. service costs, upholstered, indexed)
Deposit
€3,900
Service costs
€45 per month
Upholstered
Yes
Upholstered
Upholstered
Status
Rented
Acceptance
By consultation
Offered since
14 October 2025
Last updated
27 October 2025

Construction

Type of residence
Apartment, house with shared staircase, apartment
Floor
1st floor
Type of construction
Existing estate
Accessibility
People with disabilities
Seniors
Construction period
2005
Roof materials
Bitumen
Rooftype
Flat
Isolations
Full
Insulated glazing

Surfaces and content

Floor Surface
100 m²
Content
300 m³
Surface area other inner rooms
6 m²
External surface area
14 m²

Layout

Number of floors
1
Number of rooms
4 (of which 3 bedrooms)
Number of bathrooms
1 (and 1 separate toilet)

Outdoors

Location
At waterside
Near public transport
Near school
Near shopping center
On a quiet street
Residential area
Unobstructed view

Energy consumption

Energy certificate
A+

Features

Water heating
District heating
Heating
District heating
Ventilation method
Mechanical ventilation
Bathroom facilities
Bath
Shower
Steamcabin
Washbasin furniture
Has a balcony
Yes
Has CCTV
Yes
Has an elevator
Yes
Has fibre optical cable
Yes
Has a storage room
Yes
Has ventilation
Yes

Association of owners

Registered at Chamber of Commerce
Yes
Long term maintenance plan
Yes
Maintenance forecast
Yes

Cadastral informations

Cadastral designation
Almere P 5444
Range
Condominium
Ownership
Full ownership
Recently viewed
View all listings