Description
For sale in Amsterdam West (Oud-West):
This renovated apartment of approx. 68 m² is located on the lively Overtoom, a stone's throw from the Vondelpark. The property is situated around the corner from Jan Pieter Heijestraat, so literally all conceivable amenities are within walking distance.
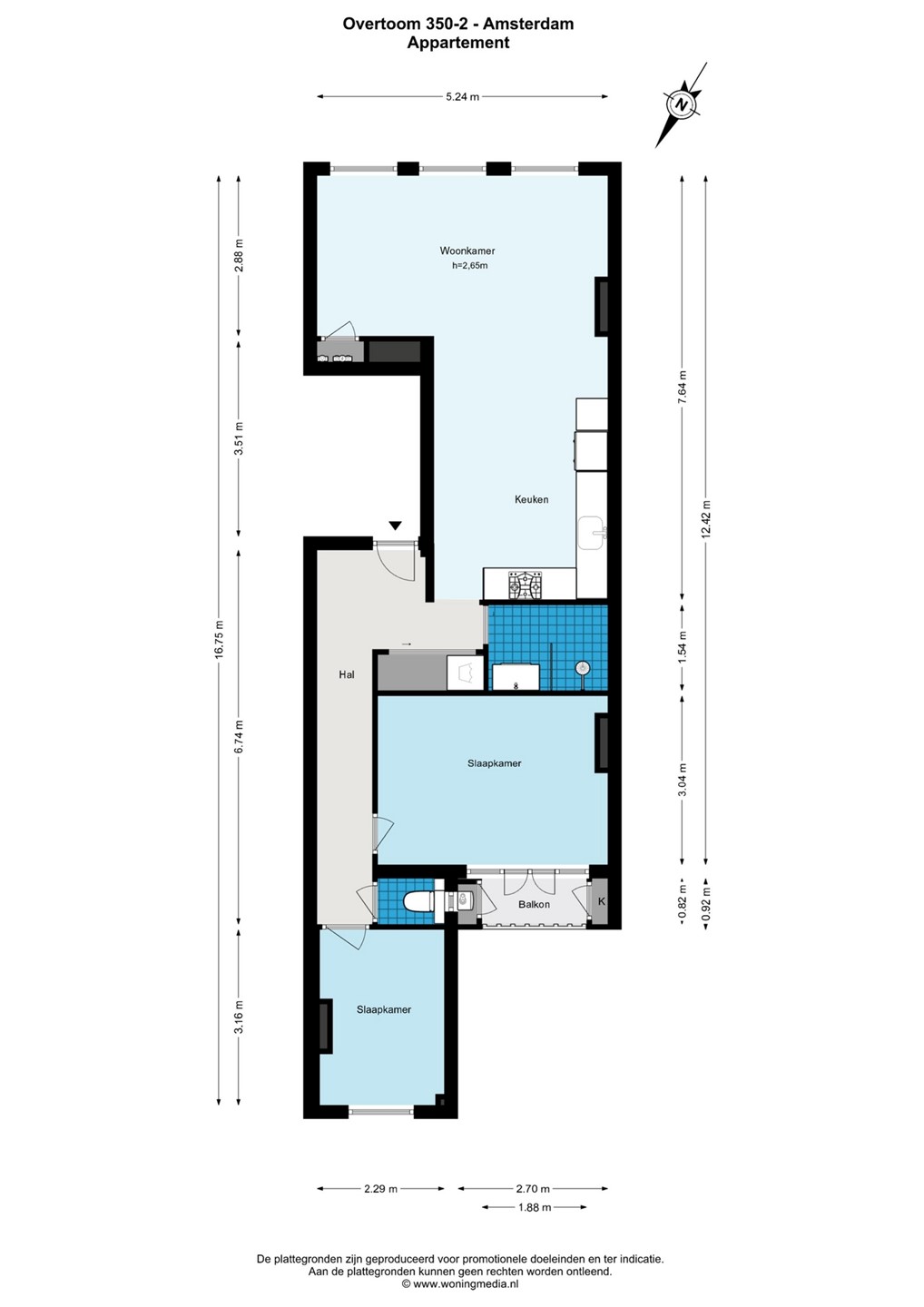
Inside, the property has two bedrooms, a spacious living room with open kitchen, modern bathroom, and a balcony at the rear. Naturally, the property is located on freehold land and can be delivered quickly.
SURROUNDINGS:
De Overtoom is centrally located in Amsterdam West, adjacent to the Vondelpark. The neighborhood is known for its lively mix of restaurants, specialty shops, and culture. In the immediate vicinity, you will find countless trendy coffee shops and eateries. The Ten Katemarkt, De Hallen, and Jan Pieter Heijestraat are also just around the corner.
The Vondelpark is just a few minutes away and offers plenty of recreational opportunities for walking, sports, and relaxation.
Accessibility is excellent: trams 1 and 11 are within walking distance, and you can reach the city center or the Jordaan district in just a few minutes by bike. By car, you can quickly reach the A10 ring road (S106/S107) via the Overtoom.
GENERAL LAYOUT:
The shared staircase leads to the apartment on the second floor. You enter a spacious hall that provides direct access to almost all rooms. At the front is the spacious and bright living room, characterized by large windows that provide plenty of daylight and a lively view over the Overtoom. Thanks to the ceiling height of approximately 2.65 meters, the space feels extra spacious and there is enough room for both a comfortable sitting area and a dining area.
The kitchen is centrally located in the house, has a practical layout, and is equipped with various appliances and ample storage space. Adjacent to the kitchen is the bathroom, which has a shower, sink, and washing machine connection.
The bedrooms are located at the rear of the house. The master bedroom has access to the balcony, which is pleasantly located at the quiet rear. Adjacent to the hall is a second bedroom, which is also ideal for use as a workspace, children's room, guest room, or hobby room. There is also a separate toilet in the hall.
In short: a pleasantly laid-out apartment with lots of light, a logical layout, and plenty of possibilities!
HOMEOWNERS' ASSOCIATION:
The Homeowners' Association of the building at Overtoom 350 is an active and healthy association. The management is actively carried out by the members themselves. The stairwell has recently been maintained (painted and upholstered).
OWNERSHIP SITUATION:
This apartment is located on freehold land! There is therefore no leasehold.
PARKING:
Permit area: West-11.3. With a parking permit for West-11.3, you can park in West-11. There is currently a waiting list of 9 months. With an electric car, you can get priority if you meet the conditions for an environmental parking permit. (source: municipality of Amsterdam, November 2025).
SPECIFICATIONS:
- Bright living room with lots of windows;
- High ceilings (approx. 2.65 m);
- Located in the popular Oud-West neighborhood, a stone's throw from the Vondelpark;
- Well-designed and charming 2-room apartment;
- Usable living area: 68 m2 | NEN2580 measurement report available;
- Balcony at the quiet rear;
- Two bedrooms, also quietly located;
- Located on private land;
- Healthy and active owners' association;
- Delivery in consultation / can be done soon;
- Subject to seller's approval.
For more information about this property and/or to make a viewing appointment, please contact our office. Our staff will be happy to assist you.
This property is offered in accordance with Article 7:17(6) of the Dutch Civil Code. The specified characteristics and/or information have been compiled by us with the necessary care. However, we accept no liability for any incompleteness, inaccuracy, or otherwise, or the consequences thereof. All specified sizes and surfaces are indicative only. The specified characteristics are intended as an indication only. The age clause, ‘seller has not been a resident’ clause, and NEN2580 clause apply to this property.