Nederlands
Sold subject to conditions:Reguliersdwarsstraat 93B, 1017 BK Amsterdam - Photo
Sold subject to conditions
+23

Reguliersdwarsstraat 93B 1017 BK Amsterdam €550,000

  • Apartment
  • 3 rooms
  • 2 bedrooms
  • 1 Bathrooms
  • Construction year 2004
  • 66 m² liveable area
  • A Energy certificate A

Description

For Sale in Amsterdam City Centre:

This recently renovated single-level apartment of approximately 66 m² is located in a modern building completed in 2004, equipped with an elevator and private storage rooms. The apartment’s position on the third floor makes the presence of a lift particularly convenient and ensures a bright and pleasant living space.

The apartment features an exceptionally functional layout. The living room with open kitchen at the front forms the heart of the home, while the two spacious bedrooms and balcony at the quiet rear offer comfort and privacy. Internally, the property has been fully refurbished, including a new kitchen, bathroom, and flooring. A unique opportunity to live comfortably in the historic heart of the city.

LOCATION:
Reguliersdwarsstraat is situated in one of the most central and sought-after locations in Amsterdam, surrounded by stylish amenities and high-end facilities. In the immediate vicinity, you’ll find boutiques, refined restaurants, and leading hotels, giving the area an international allure. For culture enthusiasts, the Rijksmuseum, Van Gogh Museum, and Concertgebouw are only minutes away. The nearby Vondelpark and the iconic canal belt offer a peaceful and green contrast — ideal for relaxation and outdoor recreation.

Accessibility is excellent. Trams, buses, and metros provide direct connections to both Amsterdam Central Station and Station Zuid, as well as Schiphol Airport. For motorists, major roads are easily reached, and several parking garages nearby offer additional convenience. The combination of luxury amenities, cultural landmarks, and strong connectivity makes this location an exceptionally attractive living environment for anyone seeking the best of city life within easy reach.

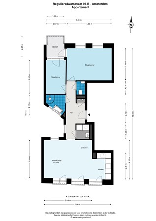
LAYOUT:
This renovated single-level apartment is located on the third floor of a building completed in 2004. The entrance is accessible via both the elevator and a well-maintained staircase. Upon entering, you step into a central hallway that provides access to all rooms.

At the front is the bright living room with open kitchen, equipped with all modern built-in appliances. Thanks to its southern orientation and the lower buildings across the street, this space enjoys abundant natural light and ample privacy.

At the rear are two bedrooms situated in a quiet position. The main bedroom is generously sized (almost 16 m²), and both bedrooms have access to the rear balcony. Owing to the blind wall of Pathé De Munt at the back, the bedrooms and balcony also offer plenty of privacy. The bathroom, accessible from the hallway, features a modern washbasin unit, shower, and towel radiator.

In addition, the hallway provides space for coats and shoes, a separate toilet with washbasin, and a practical internal storage/laundry room with central heating system, washing machine, dryer connection, and ample storage space. On the ground floor of the complex, the apartment also benefits from a private storage unit suitable for bicycles.

In short: a comfortable, single-level apartment in a prime central location, featuring two quietly positioned bedrooms and an elevator!

OWNERSHIP:
The apartment is situated on freehold land, so there is no ground lease.

HOMEOWNERS’ ASSOCIATION (VvE):
The “Vereniging van Eigenaars – De Munt (phase four)” is an active and professionally managed association. The monthly service costs currently amount to €301.

SPECIFICATIONS:
- Located in a building completed in 2004;
- Equipped with an elevator and private storage units;
- Two bedrooms quietly situated at the rear;
- Balcony at the rear;
- High level of privacy on both sides;
- Single-level apartment with a logical layout;
- Freehold property (no ground lease);
- Living area: approx. 66 m² (NEN2580 measurement report available);
- Sale subject to owner’s approval;
- Delivery in consultation.

For more information about this property and/or to schedule a viewing, please contact our office. Our team will be pleased to assist you.

This property is offered in accordance with Article 7:17 paragraph 6 of the Dutch Civil Code. The listed features and information have been compiled with due care; however, no liability is accepted for any inaccuracies, omissions, or consequences thereof. All dimensions and surfaces are indicative. The listed features serve for descriptive purposes only. The standard age clause, “seller has not lived in the property” clause, and NEN2580 measurement clause apply to this property.

Kaart

Features

Offer

Reference number
02880
Asking price
€550,000
Service costs
€301
Status
Sold subject to conditions
Acceptance
By consultation
Offered since
28 October 2025
Last updated
08 December 2025

Construction

Type of residence
Apartment, upstairs apartment, apartment
Floor
3rd floor
Type of construction
Existing estate
Accessibility
People with disabilities
Seniors
Construction period
2004
Roof materials
Bitumen
Rooftype
Flat
Isolations
Floor
Full
HR glazing
Insulated glazing
Roof
Wall

Surfaces and content

Floor Surface
66 m²
Content
240 m³
External surface area storage rooms
5.1 m²
External surface area
4.3 m²

Layout

Number of floors
1
Number of rooms
3 (of which 2 bedrooms)
Number of bathrooms
1 (and 1 separate toilet)

Outdoors

Location
City centre
Near public transport

Energy consumption

Energy certificate
A

Boiler

Type of boiler
Nefit Proline HR
Heating source
Gas
Year of manufacture
2019
Combiboiler
Yes
Boiler ownership
Owned

Features

Water heating
Central heating system
Heating
Central heating
Ventilation method
Mechanical ventilation
Bathroom facilities
Shower
Washingmachine connection
Has a balcony
Yes
Has an elevator
Yes
Has a French balcony
Yes
Has fibre optical cable
Yes
Has an internet connection
Yes
Has a storage room
Yes
Has ventilation
Yes

Association of owners

Registered at Chamber of Commerce
Yes
Annual meeting
Yes
Periodic contribution
Yes
Long term maintenance plan
Yes
Maintenance forecast
Yes
Home insurance
Yes

Cadastral informations

Cadastral designation
Amsterdam I 11348
Range
Condominium
Ownership
Full ownership

Media

Video

Floor plans

Recently viewed
View all listings