English
+33

Prinsengracht 534-2 1017 KJ Amsterdam € 975.000,- k.k.

  • Appartement
  • 3 kamers
  • 2 slaapkamers
  • 1 badkamer
  • Bouwjaar 1670
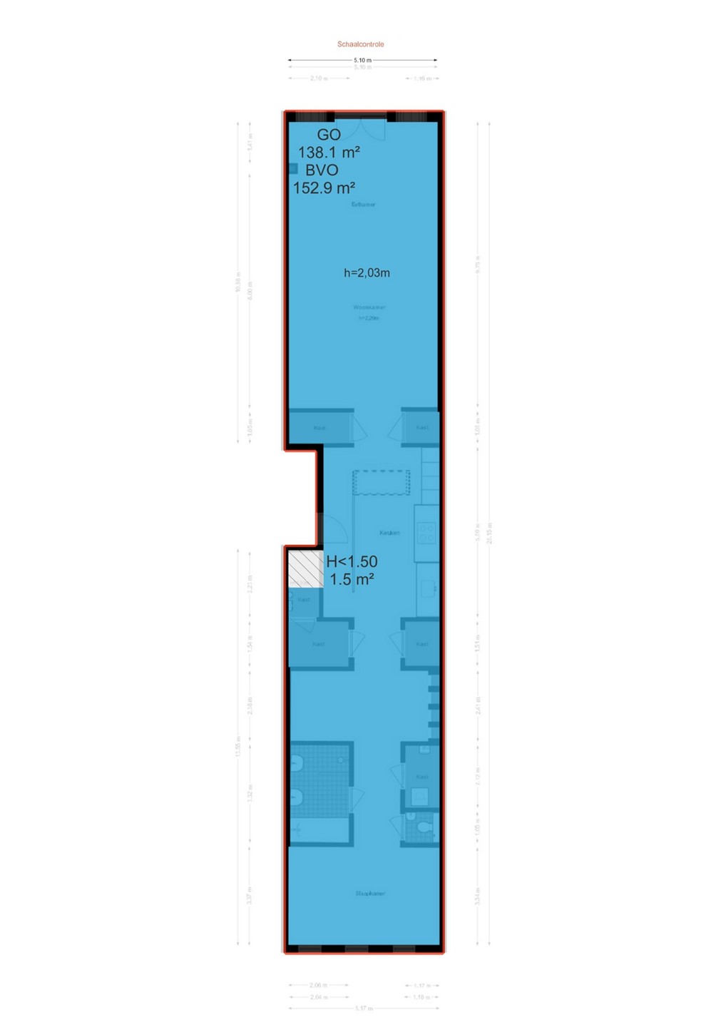
  • 138 m² gebruiksoppervlakte
  • Gestoffeerd
  • B Energielabel B

Beschrijving

*ENGLISH TRANSLATION BELOW

Te koop aangeboden in Amsterdam Centrum (Grachtengordel):

Het onder architectuur verbouwde appartement van 138 m² is onderdeel van Rijksmonument 'Het Lam' — een van de best bewaarde 17e-eeuwse pakhuizen aan de Prinsengracht. De robuuste houten balken, de authentieke details en het uitzicht over het water geven dit appartement zijn bijzondere karakter.

Een zeldzame kans om te wonen op één van de meest gewilde locaties van Amsterdam, in een royaal en karaktervol appartement met alle comfort van nu.

INDELING:
Je bereikt het appartement op de tweede verdieping via het recentelijk gerenoveerde gemeenschappelijke trappenhuis.

Onder architectuur verbouwd, met een speelse en doordachte indeling die bezoekers keer op keer positief verrast vanwege de fraaie zichtlijnen. De ruimte voelt als een loft - onverwacht, ruim (28 meter diep) en heeft een hoogwaardige gietvloer door de gehele woning. Het geheel ademt rust en ruimte.

De royale living aan de voorzijde biedt volop ruimte voor een ruime zit- en eetkameropstelling en vormt het absolute hart van de woning. Door de dubbele openslaande deuren heb je een ononderbroken zicht over de Prinsengracht dat nooit verveelt.

De Siematic keuken ligt centraal in het pand en is volledig uitgerust. Een ruim daklicht brengt verrassend veel natuurlijk licht naar binnen - waardoor de keuken ondanks de ligging midden in het appartement licht is en aangenaam aanvoelt. Ideaal voor zowel dagelijks gebruik als uitgebreid dineren en entertainen.

Het slaapgedeelte is rustig gelegen aan de achterzijde van het appartement en beschikt over diverse maatwerk inbouwkasten. De ruime badkamer is luxe uitgevoerd en voorzien van een ligbad, dubbele wastafel en een royale inloopdouche. Daarnaast beschikt het appartement over een separaat toilet, een praktische wasruimte, een bijkeuken/berging en een separate stookruimte.

OMGEVING:
De woning is gelegen op een absolute toplocatie binnen de Amsterdamse Grachtengordel, aan de Prinsengracht nabij de Spiegelgracht, Nieuwe Spiegelstraat, Vijzelgracht, Leidsestraat en het Rijksmuseum. Een omgeving waar historie, cultuur, exclusieve boetieks en hoogwaardige gastronomie naadloos samenkomen.

In de directe omgeving bevinden zich diverse gerenommeerde restaurants, stijlvolle cafés, galeries, antiekzaken en luxe winkels. Ook het Museumplein en de geliefde Utrechtsestraat met haar verfijnde aanbod aan speciaalzaken en horecagelegenheden bevinden zich op loopafstand.

De bereikbaarheid is uitstekend. Diverse tram- en busverbindingen bevinden zich om de hoek, de Noord/Zuidlijn ligt op korte afstand en Amsterdam Centraal Station is binnen enkele fietsminuten bereikbaar. Tevens zijn er goede parkeervoorzieningen beschikbaar via het vergunningensysteem alsmede diverse nabijgelegen parkeergarages.

HUIDIGE EIGENAREN:
Waarom hebben jullie het appartement gekocht?
We vielen beiden als een blok voor de locatie: super centraal gelegen, op loopafstand bij alles wat voor ons het leven de moeite waard maakt: musea, theaters, concerten, cafés en restaurants.

Hoe is het appartement jullie thuis geworden?
De ruimte en potentie voelden we direct toen we de eerste keer binnenstapten, de indeling was nogal onpraktisch. Een architect heeft voor ons een ontwerp gemaakt dat direct paste als een handschoen. Daarin is de lengte (28 m) behouden, zijn er op een verrassende manier ruimtes gecreëerd waardoor het na al die jaren nog steeds niet verveelt.

VERENIGING VAN EIGENAREN:
De “Vereniging van Eigenaars - Het Lam” betreft een actieve en financieel gezonde vereniging. De servicekosten bedragen thans EUR 315,- per maand.

EIGENDOMSSITUATIE:
Het appartement is gelegen op eigen grond. Er is derhalve géén sprake van erfpacht.

BIJZONDERHEDEN:
- gelegen op een absolute toplocatie aan de Prinsengracht;
- woonoppervlakte circa 138 m² (NEN2580);
- indrukwekkende diepte van circa 28 meter;
- gelegen op eigen grond, dus géén erfpacht;
- onderdeel van een karakteristiek Rijksmonument* (nr. 4592);
- voorzien van vloer- en plafondisolatie;
- stijlvolle gietvloer door de gehele woning;
- prachtige authentieke details, waaronder robuuste houten balken;
- royale living met fenomenaal uitzicht over de Prinsengracht;
- actieve en gezonde Vereniging van Eigenaars;
- oplevering in overleg, kan spoedig.

Voor meer informatie over deze woning en/of het maken van een bezichtigingsafspraak kun je contact opnemen met ons kantoor. Onze medewerkers zijn je graag van dienst.

ACHTERGROND INFORMATIE:
* Monument 4592 | Pakhuis met puntgevel (XVII B), zeer gaaf | Oorspronkelijke functie: Handelsgebouwen, opslag- en transportgebouwen.
Goed bewaard gebleven 17e-eeuws pakhuis-tweeling met tuitgevels, aanzetvoluten en rondboogvormige pakhuisvensters, met daarnaast kleine rondboogvensters (type b bij Revesz-Alexander): nr. 534 Het Lam en nr. 536 Cornelia.

Deze woning wordt aangeboden conform artikel 7:17 lid 6 van het Burgerlijk Wetboek. De opgegeven kenmerken en/of informatie zijn door ons met de nodige zorgvuldigheid samengesteld. Onzerzijds wordt echter geen enkele aansprakelijkheid aanvaard voor enige onvolledigheid, onjuistheid of anderszins, dan wel de gevolgen daarvan. Alle opgegeven maten en oppervlakten zijn slechts indicatief. De opgegeven kenmerken zijn uitsluitend als aanduiding bedoeld. De ouderdomsclausule, de clausule “verkoper is geen bewoner geweest” en de NEN2580-clausule zijn van toepassing op deze woning.

De meetinstructie is gebaseerd op de NEN2580. Het object is opgemeten door een professionele organisatie en eventuele discrepanties in de verstrekte metingen kunnen Amstelland Makelaars B.V. niet worden aangerekend. Koper heeft de gelegenheid om een eigen NEN 2580-meting uit te laten voeren.

For sale in Amsterdam City Centre:

This architecturally redesigned apartment of 138 m² forms part of the national monument “Het Lam” — one of the best-preserved 17th-century warehouses along the Prinsengracht canal. The robust wooden beams, authentic details and stunning views over the water give this apartment its truly distinctive character.

A rare opportunity to live in one of Amsterdam’s most sought-after locations, in a spacious and characterful apartment offering every modern comfort.

LAYOUT:
The apartment is accessed on the second floor via the recently renovated communal staircase.

The apartment has been architecturally redesigned with a playful and thoughtfully conceived layout that continues to surprise visitors thanks to its beautiful sightlines. The space has a true loft-like feel — unexpected, spacious (approximately 28 metres deep) — and features a high-quality cast floor throughout. The overall atmosphere exudes tranquillity and space.

The generous living area at the front offers ample room for both a spacious sitting and dining area and forms the absolute heart of the home. Through the double French doors, you enjoy uninterrupted views over the Prinsengracht canal — a view that never ceases to impress.

The centrally positioned Siematic kitchen is fully equipped. A large skylight allows an abundance of natural light to flow in, giving the kitchen a bright and pleasant ambiance despite its central location within the apartment. Ideal for both daily living and elaborate dining or entertaining guests.

The sleeping quarters are quietly situated at the rear of the apartment and feature several custom-built wardrobes. The spacious bathroom is luxuriously finished and equipped with a bathtub, double washbasin and a generous walk-in shower. In addition, the apartment offers a separate toilet, practical laundry room, utility/storage room and a separate boiler room.

AREA:
The property is situated in an absolute prime location within Amsterdam’s prestigious Canal Belt, on the Prinsengracht near the Spiegelgracht, Nieuwe Spiegelstraat, Vijzelgracht, Leidsestraat and the Rijksmuseum. A setting where history, culture, exclusive boutiques and fine gastronomy blend together seamlessly.

In the immediate vicinity you will find a wide variety of renowned restaurants, stylish cafés, galleries, antique shops and luxury boutiques. The Museumplein and the highly popular Utrechtsestraat — known for its refined selection of specialty shops and restaurants — are also within walking distance.

Accessibility is excellent. Several tram and bus connections are located just around the corner, the North/South metro line is within short walking distance, and Amsterdam Central Station can be reached within minutes by bicycle. In addition, ample parking facilities are available through the permit system as well as several nearby parking garages.

CURRENT OWNERS:
Why did you purchase the apartment?
“We both instantly fell in love with the location: incredibly central and within walking distance of everything that makes life worthwhile for us — museums, theatres, concerts, cafés and restaurants.”

How did the apartment become your home?
“We immediately felt the space and potential the moment we first walked in, although the original layout was rather impractical. An architect designed a plan for us that fit like a glove. The impressive length (28 metres) was preserved, while cleverly creating surprising spaces throughout the apartment — ensuring it still never feels boring, even after all these years.”

HOMEOWNERS’ ASSOCIATION:
The “Vereniging van Eigenaars – Het Lam” is an active and financially healthy homeowners’ association. The current service charges amount to EUR 315 per month.

OWNERSHIP SITUATION:
The apartment is situated on freehold land. Therefore, no ground lease applies.

DETAILS:
- Situated in an absolute prime location on the Prinsengracht canal;
- area approximately 138 m² (NEN2580 measurement report);
- impressive depth of approximately 28 metres;
- situated on freehold land, therefore no ground lease;
- part of a characteristic national monument* (monument no. 4592);
- fitted with floor and ceiling insulation;
- stylish cast flooring throughout the apartment;
- beautiful authentic details, including robust wooden beams;
- spacious living room with phenomenal views over the Prinsengracht;
- active and financially healthy homeowners’ association;
- transfer date in consultation, can be arranged quickly.

For more information regarding this property and/or to schedule a viewing appointment, please contact our office. Our team will be delighted to assist you.

BACKGROUND INFORMATION:
Monument no. 4592 | Warehouse with stepped gable (17th century B), exceptionally well preserved | Original function: commercial, storage and transport buildings.

Exceptionally well-preserved pair of 17th-century warehouses featuring stepped gables, scroll-shaped side ornaments and arched warehouse windows, accompanied by smaller arched windows (type b according to Revesz-Alexander): no. 534 “Het Lam” and no. 536 “Cornelia”.

This property is offered in accordance with Article 7:17 paragraph 6 of the Dutch Civil Code. The information and specifications provided have been compiled with due care. However, no liability is accepted for any incompleteness, inaccuracies or otherwise, nor for the consequences thereof. All stated measurements and surface areas are indicative only. The stated specifications are intended solely as an indication. The age clause, the “seller has not occupied the property” clause and the NEN2580 clause apply to this property.

The measurement instruction is based on the NEN2580 standard. The property has been measured by a professional organisation and any discrepancies in the provided measurements cannot be attributed to Amstelland Makelaars B.V. Buyers are given the opportunity to carry out their own NEN2580 measurement.

Kaart

Kenmerken

Overdracht

Referentienummer
02953
Vraagprijs
€ 975.000,- k.k.
Servicekosten
€ 315,-
Inrichting
Ja
Inrichting
Gestoffeerd
Aanvaarding
In overleg
Aangeboden sinds
Vrijdag 10 april 2026
Laatste wijziging
Dinsdag 12 mei 2026

Bouw

Type object
Appartement, bovenwoning
Woonlaag
2e woonlaag
Soort bouw
Bestaande bouw
Bouwperiode
1670
Type dak
Zadeldak
Isolatievormen
Gedeeltelijk dubbel glas

Oppervlaktes en inhoud

Woonoppervlakte
138 m²
Woonkameroppervlakte
50 m²
Inhoud
356 m³

Indeling

Aantal bouwlagen
1
Aantal kamers
3 (waarvan 2 slaapkamers)
Aantal badkamers
1 (en 1 apart toilet)

Locatie

Ligging
Aan vaarwater
Aan water
Dichtbij openbaar vervoer

Energieverbruik

Energielabel
B

CV ketel

CV ketel
Remeha Tzerra HR
Warmtebron
Gas
Bouwjaar
2015
Combiketel
Ja
Eigendom
Eigendom

Uitrusting

Warm water
CV-ketel
Verwarmingssysteem
Centrale verwarming
Badkamervoorzieningen
Dubbele wastafel
Inloopdouche
Ligbad
Heeft een frans balkon
Ja
Heeft een dakraam
Ja

Vereniging van Eigenaren

Ingeschreven bij de KvK
Ja
Jaarlijkse vergadering
Ja
Reservefonds
Ja
Opstal verzekering
Ja

Kadastrale gegevens

Kadastrale aanduiding
Amsterdam I 10032
Omvang
Appartementsrecht of complex
Eigendomsituatie
Eigen grond
Indexnummer
A9