English
Nieuw in verhuur:Velázquezstraat 26, 1328 WB Almere - Foto
Nieuw in verhuur
+32

Velázquezstraat 26 1328 WB Almere € 2.250,- /mnd

  • Appartement
  • 4 kamers
  • 3 slaapkamers
  • 1 badkamers
  • Bouwjaar 2005
  • 100 m² gebruiksoppervlakte
  • Gestoffeerd
  • B Energielabel B

Beschrijving

*BEZICHTIGINGSAANVRAAG VIA MAIL / APPLY THROUGH EMAIL - info@amstellandmakelaars.nl
* APPLY THROUGH EMAIL - info@amstellandmakelaars.nl

Te huur aangeboden in Almere (Tussen de Vaarten zuid):

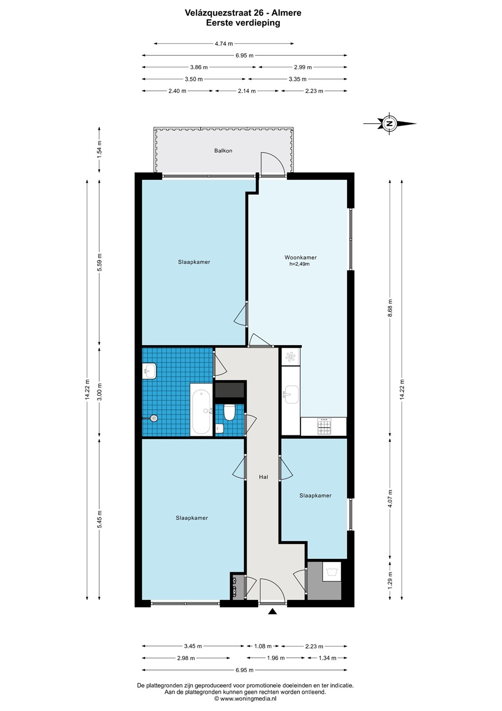
Op zoek naar een ruim en modern appartement met vrij uitzicht én twee buitenruimtes? Dit prachtige 4-kamer hoekappartement van ca. 100 m², gelegen op de eerste verdieping van een nieuwbouwcomplex met lift en berging, biedt alles wat je nodig hebt voor comfortabel wonen.

Het appartement ligt op de eerste verdieping en heeft een prachtig uitzicht. De ligging van het balkon aan de voorzijde is op het noordwesten en de buitenruimte aan de achterzijde (grenzend aan de galerij) is gelegen op het zuidoosten. Hierdoor kunt u de gehele dag genieten van de zon!

OMGEVING:
Het appartement ligt in de populaire, kindvriendelijke wijk Tussen de Vaarten Zuid – centraal tussen het Stadscentrum en Almere-Buiten. Binnen enkele minuten bereik je supermarkten, scholen, kinderopvang, een gezondheidscentrum, sportfaciliteiten en openbaar vervoer (NS-station Parkwijk en Almere-Buiten). Met de auto ben je via de Hogering in no-time op de A6 en A27 – ideaal voor forenzen richting Amsterdam, Utrecht of Lelystad.

GLOBALE INDELING:
Het appartementencomplex heeft een gemeenschappelijke entree. Met de lift of het royale trappenhuis bereikt je het appartement. Op de eerste verdieping is een daktuin aangelegd.

De woonkamer is gelegen aan de voorzijde van het appartement en geeft een mooi zicht over de vijver en het groen. Tevens is het balkon gelegen over de gehele breedte van het appartement (ca. 10 m2) te bereiken via de woonkamer. De moderne open keuken is uitgevoerd in een praktische opstelling en voorzien van diverse inbouwapparatuur zoals een vaatwasser, koel-/vriescombinatie, inductie kookplaat en afzuigskap.

Centraal in het appartement bevind zich de luxe badkamer, voorzien van een fraaie douche, ligbad en wastafelmeubel. Separaat toilet met fonteintje.
Voorts heeft het appartement drie ruime slaapkamers, een wasruimte, een bijkeuken en een tweede buitenruimte grenzend aan de daktuin!

Kortom, een strak en modern appartement welke van alle gemakken voorzien is!

PARKEREN:
Rondom de woning is er meer dan genoeg parkeergelegenheid (2x elektrische parkeerplaatsen) waar vrij geparkeerd kan worden.

BIJZONDERHEDEN:
- Oppervlakte: circa 100 m2;
- drie slaapkamers, open keuken en 2 balkons;
- geschikt voor woningdelers;
- lift aanwezig in het complex;
- schitterend balkon aan de voorzijde met vrij uitzicht;
- grotendeels recentelijk gerenoveerd;
- moderne keuken en badkamer;
- ruime separate berging in de onderbouw;
- alle denkbare voorzieningen op steenworp afstand;
- Huurovereenkomst Model: A (huurperiode minimaal 12 maanden);
- de woning wordt uitsluitend gestoffeerd opgeleverd;
- voorbehoud gunning verhuurder.

Voor meer informatie of het maken van een bezichtigingsafspraak kunt u contact opnemen met ons kantoor. Onze medewerkers zijn u graag van dienst.

Deze woning wordt aangeboden conform art 7:17 lid 6 Burgerlijk Wetboek. De opgegeven kenmerken zijn slechts als aanduiding bedoeld.

Kaart

Kenmerken

Overdracht

Referentienummer
02869
Huurprijs
€ 2.250,- per maand (incl. servicekosten, gestoffeerd, geïndexeerd)
Borg
€ 4.500,-
Inrichting
Ja
Inrichting
Gestoffeerd
Status
Nieuw in verhuur
Aanvaarding
In overleg
Aangeboden sinds
Maandag 29 september 2025

Bouw

Type object
Appartement, portiekwoning
Woonlaag
1e woonlaag
Soort bouw
Bestaande bouw
Toegankelijkheid
Mindervaliden
Senioren
Bouwperiode
2005
Dakbedekking
Bitumen
Type dak
Platdak
Isolatievormen
Dubbel glas
Volledig geïsoleerd

Oppervlaktes en inhoud

Woonoppervlakte
100 m²
Inhoud
300 m³
Oppervlakte overige inpandige ruimten
6 m²
Oppervlakte gebouwgebonden buitenruimte
14 m²

Indeling

Aantal bouwlagen
1
Aantal kamers
4 (waarvan 3 slaapkamers)
Aantal badkamers
1 (en 1 apart toilet)

Locatie

Ligging
Aan rustige weg
Aan water
Dichtbij openbaar vervoer
In woonwijk
Nabij school
Nabij winkelcentrum
Vrij uitzicht

Energieverbruik

Energielabel
B

Uitrusting

Warm water
Stadsverwarming
Verwarmingssysteem
Stadsverwarming
Ventilatie methode
Mechanische ventilatie
Badkamervoorzieningen
Douche
Ligbad
Stoomcabine
Wastafelmeubel
Heeft een balkon
Ja
Heeft CCTV
Ja
Heeft een lift
Ja
Glasvezelaansluiting aanwezig
Ja
Heeft schuur/berging
Ja
Heeft ventilatie
Ja

Vereniging van Eigenaren

Ingeschreven bij de KvK
Ja
Meer jaren onderhoudsplan
Ja
Onderhoudsverwachting
Ja

Kadastrale gegevens

Kadastrale aanduiding
Almere P 5444
Omvang
Appartementsrecht of complex
Eigendomsituatie
Eigen grond